Exterior before > design > after



As built interior photos




Typical site specific design intent presentation
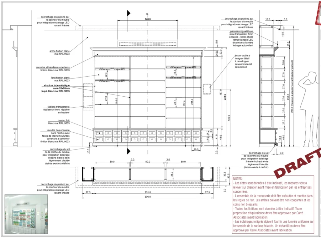
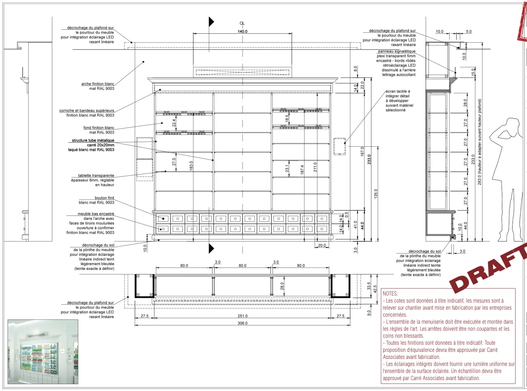
Detail drawing examples







Familia is a large pharmacy group operating in the French speaking market of Belgium. In 2014, the retailer listened to its customer base and decided to refresh its then outdated brand identity. To align with this one, they also envisioned a full refit of their physical stores.
As Carré Associates offered a full package of services including customer research, brand and retail design departments, Familia opted for them as a partner on this journey.
Sector: Health & Beauty
Scope: Full analysis to post-opening
Role: Senior Retail Designer
Collaboration: Carré Associates
Date: 2015-2016
Location: Belgian roll-out
The brief received was to first conduct more in-depth customer research to understand what needs and expectations of the brand and store experience were.
Through this initial exercise, Carré Associates’ research team was able to identify a strong brand/ customer attachment. Customers were overall very positive about the retailer and simply expected its identity both visually and in-store to reflect its high quality service and expertise. This served as the brief for the full brand and store re-design.
A concept was created and presented to focus groups. It was then planned to implement a first test location, adjust the design based on the experience from this store and then roll it out across the group’s portfolio.

When I joined Carré Associates, the store concept had already been signed off by the client and its target customer audience via focus groups. My job was to take the first concept intentions and translate them into an implementable design for the pilot store. I liaised with the client’s in-house construction team to deliver this first store. Together we agreed on slight adjustments to take forward into the roll-out.
Using this feedback, I developed a set of standard construction drawings. For the following year, I personally assisted the client in the implementation of another four locations. For each, I drafted a floor implementation plan as well as liaised with our visualiser to prepare renderings of the inside and outside of the store. This was used for sign-off with the client’s main office, each store’s team as well as the relevant city authorities.
Through this process a handover was slowly put in place so that the client could manage the subsequent roll-out internally. Altogether the ambition was to refresh all 100+ locations within the existing group with ambitions to also open new ones.
Do you have a similar project and need help?