Bristol store, UK




Illum Shop-in-shop, Norway


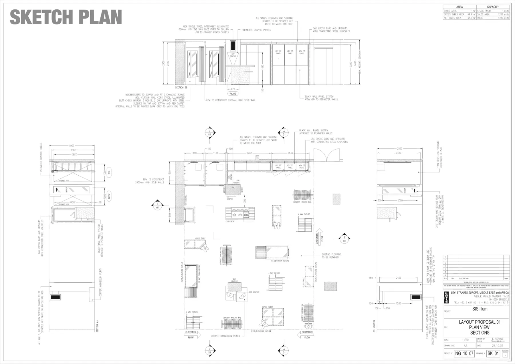
Standard drawing work




In the early 2000’s, Levi’s operated a roll-out of its physical stores across the EMEA region from headquarters located in Brussels. The creative concept itself fell under the responsibility of the marketing team who tended to contract an external branding agency for this work.
Our in-house retail implementation team, comprising interior designers, store implementation project managers and POS managers was then responsible for taking the brand and store books received and applying those creative ideas to the reality of a very wide range of store formats in a myriad of locations: SIS, mall, high street, franchisees, owned and operated, etc. This was also rendered possible with the support of local brand representatives and architects.
Sector: Fashion
Scope: Bespoke
Role: Junior Designer
Date: 2007-2009
Location: Europe, Middle East & Africa
Our team comprised four in house designers, each working on multiple projects at once. To ensure efficiency, our team head had set-up standard drawing templates & various supporting documents (intake information, furniture and lighting order forms, etc), as well as a standard design process & time frame:

During my time with the company, I designed more than 50 stores and approximately 80 shop in shops.
I also had the pleasure of working on two additional tasks:
Do you have a similar project and need help?